Log In
Sign Up
Log In
Sign Up
Create a Mood Board
Menu
Bathroom
Basins
Bath & Body Products
Bathroom Accessories
Bath Accessory Sets
Soap Dishes & Dispensers
Toilet Brushes & Sets
Wastebaskets & Bins
Bathroom Fixtures
Exhaust Fans
Shaving Cabinets
Shelves & Hooks
Toilet Paper Holders
Towel Rails
Traps & Wastes
Bathroom Linen
Bathmats
Bathrobes
Towels & Washcloths
Bathroom Storage Cabinets
Bathroom Taps & Mixers
Bathtubs
Laundry
Cabinetry
Clothes Airers
Laundry Accessories
Laundry Bags & Baskets
Laundry Taps
Troughs & Sinks
Washing Machines & Dryers
Mirrors
Illuminated Mirrors
Vanity Mirrors
Showers
Shelves & Soap Baskets
Shower Curtains
Shower Grates & Drains
Shower Heads & Mixers
Shower Screens & Enclosures
Shower Hinges
Toilets & Bidets
Vanities
Bedroom
Bedding
Blankets & Throws
Pillow Cases
Pillows
Quilt Covers
Quilts & Bedspreads
Sheets
Bedroom Furniture
Bed Heads
Bedroom Sets & Suites
Bedroom Storage
Beds & Bed Frames
Bedside Tables
Chairs
Dressers & Chests of Drawers
Dressing Tables
Mattresses
Shoe Organisers
Wardrobes
Kids & Nursery Decor
Clocks
Kids Cushions
Kids Prints & Wall Decor
Kids Rugs
Kids Stickers & Decals
Mobiles
Toys and Teddies
Kids Furniture & Bedding
Kids Bedding
Kids Beds & Bunks
Kids Chairs & Tables
Kids Desks
Kids Play Furniture
Kids Sofa & Chairs
Kids Storage & Toy Boxes
Nursery Furniture & Bedding
Changing Tables
Cots & Bassinets
Nursery Bedding
Building & Hardware
Bricks
Cabinetry
Cabinet Doors
Cabinet Hardware
Cladding
External Cladding
Steel Cladding
Terracotta Cladding
Textured Cladding
Vertical Cladding
Weatherboards
Aluminium Cladding
Multipurpose Cladding
Doors & Hardware
Door Hardware
External Doors
Internal Doors
Multipurpose Doors
Door Stops
Landscaping & Garden Materials
Fencing
Steel Fencing
Masonry & Retaining Walls
Ponds & Water Features
Structures & Shades
Windows & Hardware
Windows
Window Hardware
Roofing
Roof Tiles
Steel Roofing
Skirting, Architraves & Mouldings
Wall & Ceiling Paneling
Interior Panels And Linings
Wainscoting
Decorative Acoustic Wall Panels
Decor
Artwork & Wall Decor
Aboriginal Art
Original Artwork
Other Art
Painted Canvases
Posters
Prints
Wall Hangings & Decor
Premium Art
Textile Art
Picture Frames
Baskets & Boxes
Candles & Fragrances
Candle Holders
Candles
Home Fragrances
Christmas
Curtains & Blinds
Accessories
Blinds
Curtains
Other Window Furnishings
Roman Blinds
Shutters
Cushions & Throws
Cushions, Decorative Pillows
Throws
Decorative Accessories
Clocks
Coffee Table Books
Decorative Boxes
Decorative Plates & Bowls
Magazine Racks
Photo Frames
Statues & Ornaments
Trays
Vases & Jars
Mirrors
Plants & Plant Holders
Plants
Plant Holders
Rugs
Contemporary Rugs
Doormats
Hide Rugs
Jute Rugs
Other Rugs
Outdoor Rugs
Persian Rugs
Shag Rugs
Wall Shelves & Hooks
Outdoor
Garden Decor
Baskets, Pots & Window Boxes
Lanterns
Outdoor Cushions
Statues & Lawn Ornaments
Wind Chimes
Heaters & BBQs
BBQs
Braziers & Firepits
Outdoor Heaters
Outdoor Accessories
Outdoor Furniture
Hammocks
Outdoor Benches
Outdoor Chairs
Outdoor Dining Sets
Outdoor Sofa Sets
Outdoor Sofas
Outdoor Sunbeds & Daybeds
Tables
Outdoor Showers
Shades & Awnings
Saunas
Outdoor Kitchen
Kitchen & Dining
Appliances
Cooktops
Dishwashers
Espresso Machines
Microwave Ovens
Ovens
Rangehoods
Refrigerators, Freezers
Small Kitchen Appliances
Wine Fridges
Kitchen & Dining Furniture
Bar Stools
Bar Tables
Dining Chairs
Dining Sets
Dining Tables
Freestanding Cabinets
Kitchen Islands
Wine Racks
Kitchen Organisers & Storage
Kitchen Sinks
Kitchen Taps & Mixers
Kitchenware
Bakeware
Baking Dishes
Baking Trays
Cake Stands
Barware
Cookware
Cookware Sets
Pans
Woks
Cutlery
Food Preparation
Chopping Boards
Knives
Mortar & Pestles
Utensils & Gadgets
Food Storage
Glassware
Champagne Glasses
Cocktail Glasses
Decanters & Carafs
Highball Glasses
Outdoor Glasses
Tumblers
Utensils, Gadgets
Wine Glasses
Tableware
Bowls
Cups & Mugs
Dinner Sets
Jugs
Plates
Platters & Serving Boards
Salad Bowls & Servers
Salt & Pepper Mills
Linen
Aprons
Napkins
Placemats
Table Cloths & Runners
Tea Towels
Lighting
Ceiling Fans
Ceiling Lighting
Chandeliers
Pendant Lighting
Spotlights
Lamps
Desk Lamps
Floor Lamps
Lamp Shades
Table & Bedside Lamps
LED Lighting
Outdoor Lighting
String & Decorative Lighting
Wall Lighting
Living
Fireplaces & Accessories
Fireplace Mantels & Surrounds
Fireplace Screens
Fireplaces
Heating, Cooling & Air
Air Conditioners
Heaters
Sofas & Chairs
Bean Bags
Benches
Chairs
Ottomans
Sofa Beds
Sofas
Stools
Suites
Storage Units
Bookshelves
Cabinets, Chests
Coat & Hat Racks
Entertainment Units & TV Stands
Sideboards, Buffets & Trolleys
Tables
Coffee Table
Console Table
Side Table
Home Entertainment
Study
Bookcases
Chairs
Desk Decor
Desks
Filing Cabinets
Stationery
Finishes & Textiles
Flooring
Carpets
Loop
Plush
Twist
Engineered Floorboards
Dark Neutral Engineered Boards
Hardwood Flooring
Light Neutral Engineered Boards
Medium Neutral Engineered Boards
Other Flooring
Hybrid Flooring
Laminate Flooring
Dark Neutral Laminate
Light Neutral Laminate
Medium Neutral Laminate
Vinyl Flooring
Luxury Vinyl
Dark Neutral Vinyl
Light Neutral Vinyl
Medium Neutral Vinyl
Vinyl Sheets
Laminate
Paint Colour Swatches
Colour Trends 2026
Ethereal
Elemental
Evoke
Blues
Browns
Greens
Greys
Oranges
Purples and Pinks
Reds
Whites and Neutrals
Yellows
Stone & Surfaces
Natural Stone
Bluestone
Granite
Limestone
Marble
Onyx
Quartzite
Travertine
Dolomite
Other Surfaces
Solid Surfaces
Silica Free Surfaces
Sintered & Porcelain
Stone Overlays
Textiles
Fabrics
Leather
Vinyl
Tiles & Pavers
Brick Look Tiles
Ceramic Tiles
Concrete Look Tiles
Encaustic Tiles
Marble Look Tiles
Moroccan Look Tiles
Mosaic Tiles
Natural Stone Tiles
Outdoor Tiles & Pavers
Patterned Tiles
Porcelain Tiles
Stone Look Tiles
Subway Tiles
Terracotta Look Tiles
Terrazzo
Terrazzo Look Tiles
Timber Look Tiles
Wallpaper
Mood Boards
Projects
Style Edit
Designers
Create a Mood Board
Mood Boards
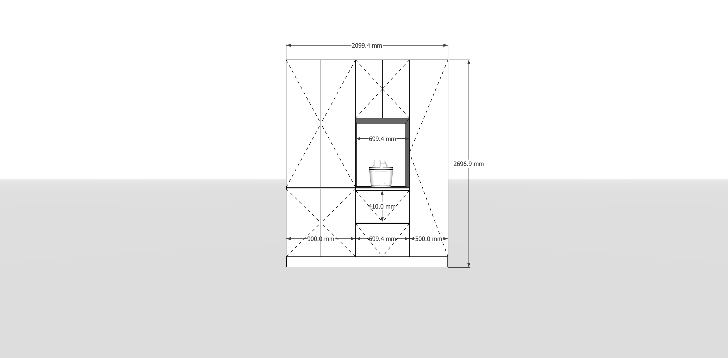
Tina Laundry views
Created by DSdezines Interiors
Created 8 months ago
Keywords
Share
Download as an image
Download
Image Sources
arrow
arrow
Polytec
Polytec
Select a Wishlist